Առանձնատուն Երեւանում, «Կասկադ» համալիրի հարեւանությամբ

2004

Երեւան
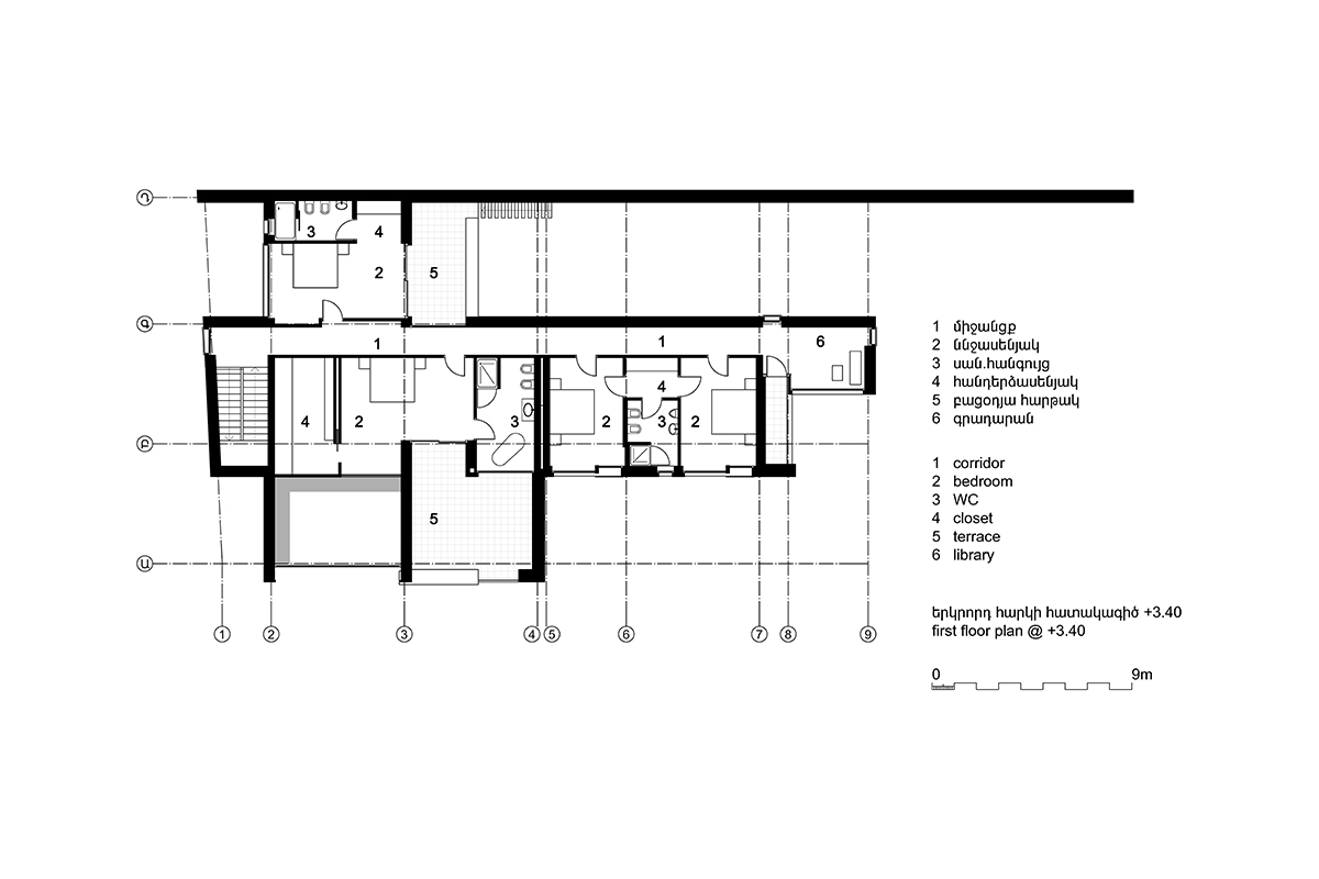
Մարգարյան ընտանիքին պատկանող առանձնատունը գտնվում է կասկադ համալիրի հարևանությամբ՝ բարձրադիր մասում: Հատակագծի ոչ կանոնավոր, երկարավուն երկրաչափությունը, հարևանությունը համալիրին, ինչպես նաև Երևանի կենտրոնի բացվող համայնապատկերը թելադրել են կառույցի ճարտարապետությունը: Առանձնատան գլխավոր հարավային ճակատը ապակյա մեծ բացվածքներով նայում է քաղաքի կենտրոնին: Առանձնատան մուտքը գտնվում է հորինվածքի խորքում՝ համալիրին ուղղված արևմտյան ճակատում, և փողոցից դեպի մուտք անցումը կազմակերպված է իբրև պրոպիլեյներ, ինչր հանդիսանում է առանձնատան ճարտարապետական առանձնահատկություններից մեկը: Կառույցի հարդարման մեջ օգտագործված են տրավերտինե սալեր, երկաթյա էլեմենտներ: