Վերբեռնելով ՆՓԱԿ-ը- Ճարտարապետական մրցույթ

2019

Երեւան
ՆՓԱԿ-ը տարածաշրջանի ժամանակակից արվեստի գլխավոր կենտրոններից մեկն է և գտնվում է Երևանի սրտում՝ գլխավոր պողոտայի հարևանությամբ՝ Բյուզանդի և Չայկովսկի փողոցների միջև։
Երևաննախագիծ ինստիտուտի և նորարարական արվեստի կենտրոնի միջև ընկած հատվածը, որն ունի չնչին թեքություն վերածվում է հանրային տարածքի: Նրանում են բացվում արվեստի կենտրոնի և գրադարանի մուտքերը։
Հանրային տարածքը, որը կծառայի իբրև հավաքատեղի հարմար է ցուցադրություններ կազմակերպելու համար, սկսվում է Բյուզանդի փողոցից ու ավարտվում Չայկովսկու փողոցի վրա գոյացած մեկ այլ հանրային տարածքով։ Նրա վրա են բացվում կինոթատոնի ապակեպատ ճակատը և հյուրերի համար նախատեսված կացարան-արվեստանոցները իրենց կից ներքին բակերով։
Բյուզանդի և Չայկովսկու փողոցների միջև առկա նիշերի տարբերությունը թույլ է տալիս ունենալ կացարաններ և ապակեպատ թատրոն/կինոդահլիճի ճակատը, որը կարող է գործել անկախ ՆՓԱԿ-ից։ Հանրային երկու տարածքների միջև առկա է կապ, թե՛ դրսից և թե՛ արվեստի կենտրոնի միջից։
Գոյություն ունեցող կառույցի ծավալը սկզբունքորեն պահպանելով և փոխելով միջուկը, նրան հայտնել ենք նոր բովանդակություն։
0.00 նիշի վրա հանրային տարածքից են բացվում ՆՓԱԿ-ի և գրադարանի մուտքերը։ Նույն հարթության մեջ են գտնվում այցելուների կենտրոնը, տոմսարկղը, ռեստորան-սրճարանը և այլ սպասարկման տարածքներ։
3.60 հարթության վրա կրկին առնչվում են գրադարանը ընթերցասրահով ու գրապահոցով, ցուցասրահներից մեկը, հանդիպումների/կոնֆերանս դահլիճները։ Երկլույս հատվածով 0.00 և 3.60 կապվում են միմյանց։ Ցուցասրահի բարձրությունը 4մ է։
8.40 նիշի վրա է (3րդ հարկ) 150 տեղով լսարանը և երկրորդ ցուցասրահը, որը մեկ հարկ ներքև գտնվող ցուցասրահի հետ կապվում է հատակին գտնվող բացվածքների միջով և հենվում է մույթերի վրա, որոնք նույնպես կարող են ծառայել ցուցադրություններ կազմակերպելու համար։
14.20 նիշի վրա է (4րդ հարկ) կազմակերպված մեծածավալ, ապակեպատ և երկլույս քանդակների սրահ-ձմեռային այգին։ Այն շրջապատված է բոլոր կողմերից բարձր քիվապատով։ Միջանկյալ տարածության մեջ, որն է քիվապատի ու ձմեռային այգու միջև ընկած հատվածը նույնպես պիտանի ենք համարում ցուցադրություններ կազմակերպելու համար։ Ապակեպատ սրահի հարավ-արևմտյան հատվածը երկհարկանի է (19.00 նիշ) ։ Այն կարող է ծառայել իբրև սրճարան-ցուցասրահ: Այստեղից բացբում է չտեսնված տեսարան դեպի Արարատ լեռը։
Բոլոր հարկաբաժինները միմյանց հետ կապված են աստիճանավանդակով և վերելակներով։ Ինչպես նաև, երկու բեռնատար վերելակներով մեծածավալ արվեստի գործեր բարձրացնելու համար։ Տանիքում նախատեսված է վերամբարձ կռունկ ծավալուն արվեստի գործեր տեղափոխելու համար։
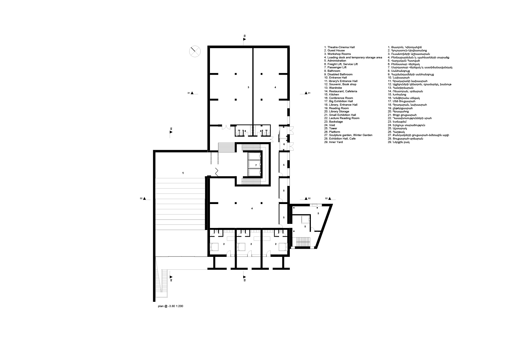
3.80 նիշի վրա են ուսանողների համար աշխատարանները, որոնք ունեն հնարավորություն լուսավորվելու բնական լույսով, հյուրատուն/արվեստանոցները, թատրոն/կինոդահլիճը և բեռնաբարձման համար ժամանակավոր պահեստավորման տարածքը։
ՆՓԱԿ-ի վարչական մասը գտնվում է կառույցի հարավ-արևելյան մասում գտնվող կցակառույցում։
Այդ հատվածից վեր է բարձրանում ուղղաձիգ աշտարակը, որի վերևում գտնվում է դիտահարթակ, որտեղից բացվում է տեսարան ամբողջ Երևանի և Արարատ լեռան վրա։
Մեր պատկերացրած ուղղաձիգ շեշտը կլրացնի ՆՓԱԿ-ի կերպարը իբրև մի վայր, որտեղ ոչ միայն ցուցադրվում, այլ ստեղծվում է նորարար արվեստ։ Միևնույն ժամանակ ուղղաձիգ ծավալը փարոսի պես կշեշտի տեղը ու կծառայի իբրև ուղեցույց, երևալով քաղաքի տարբեր հատվածներից։